热门关键词: MK网装载机价格MK网挖掘机租赁MK网压路机MK网装载机租赁MK网起重机租赁

24年保持中国工程机械行业排头兵地位
当前位置:首页 » MK网资讯中心 » 行业资讯 » MK网起重机单缸插销伸缩系统故障分析

MK网起重机单缸插销伸缩系统故障分析

文章出处:网责任编辑:作者:人气:-发表时间:2017-01-03 10:34:00【
故障1:伸缩油缸偶发性“过伸问题”
 
现象:07、08年市场反馈, “过伸问题”导致伸缩油缸撞坏限位挡板、冲至臂节外面。 “过伸”故障为偶发性,隐蔽性更强,难以找到根源。
 
故障改进措施:
 
1、增大检测感应装置空间:优化伸缩油缸结构,使尺寸c增大4mm;
 
2、将尺寸a、尺寸b各增加2mm;
 
3、规范油缸检测块的装配(控制尺寸c)。
 
故障2:加油门带臂伸出,起重机臂内异响
 
现象:带臂外伸时,若发动机油门超过2000r/min,伸缩臂内异响,吊臂有一定颤动;将发动机油门降至1800r/min以下,声音正常 。
 
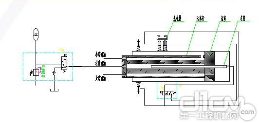
臂销与臂节摩擦原因分析:
 
1、臂销
 
带臂伸缩:解锁状态
 
控制油缸压力不可低于8MPa
 
2、芯管容腔
 
油缸外伸,芯管“容腔”变大。容腔变大的速度随着伸缩油缸速度的变大而变大。如果油液补充流量不够,则容腔内压力降低,臂销释放。
 
故障改进措施:
 
减压阀压力调高后,阀口变小,导致流量不足。故调节减压阀弹簧,以保证足够的压力和流量。
 
 
总结
 
⑴ 控制系统的信号检测出现问题,也需要从机械件、液压件、机构件综合考虑,正说明新的技术是机、电、液一体化的,高级服务人员必须多专业方向发展,靠传统一门专业来搞好服务工作的,相当困难。
 
⑵臂销控制问题要结合全过程进行考虑,减压阀的压力调整很可能带来通流能力的变化。元件的调整一定要注意度,服务过程中要把握好度,才能避免解决好一个问题而带来新的问题。
 
⑶ 产品可靠性与结构件制造精度、装配工艺、作业环境都有一定关系,要不断为开发设计源头提供设计要素,为制造、装配环节提出规范要求,从根本上提升产品可靠性。

相关资讯